Image 1 Image 2 Image 3 Image 4 Image 5 Image 6 Image 7 Image 8 Image 9 Image 10 Image 11 Image 12 Image 13 Image 14 Image 15 Image 16 Image 17 Image 18 Image 19 Image 20 Image 21 Image 22 Image 23

23 фото
Скачайте презентацию комплекса в 1 клик
book Скачать презентацию в PDF 5.11 MB, время скачивания 3 секунд

Квартира с 3 спальнями, лот 295632

450 000 000 ₽
2 217 000 рублей за м2
5 691 000 $
28 000 $ за м2
4 895 000 €
24 000 € за м2
$
этаж: 1 из 7
площадь: 203 м2
отделка: С отделкой
опции:

панорамные окна
патио

Описание комплекса
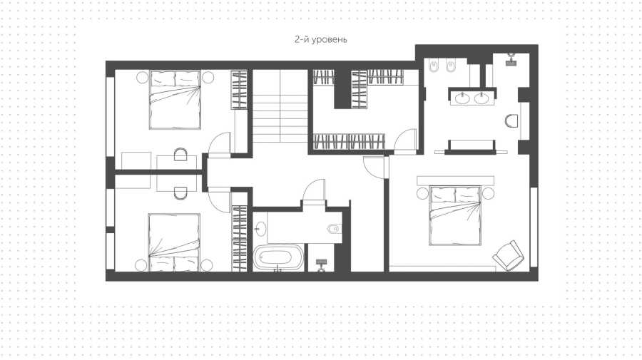
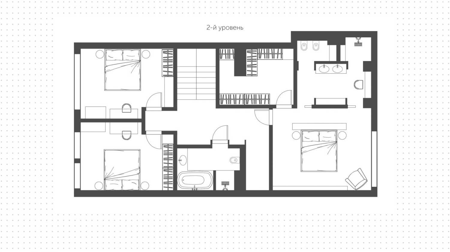
Двухуровневая квартира со своим патио в комплексе премиум-класса «Литератор» в Хамовниках. Просторная квартира общей площадью 203 м² расположена на первом этаже. Высокие потолки, много естественного света. Панорамные окна в пол с видом в приватный двор. Возможная планировка первого уровня: гостиная, кабинет, санузел, гардеробная, холл. На втором уровне можно спланировать мастер-спальню со своей ванной комнатой и гардеробной, две спальни, ванную комнату, холл.
Брокеры объекта:
Татьяна Булавкина
Татьяна Булавкина
Брокер
Ирина Егорова
Ирина Егорова
Руководитель
Александр Дубинин
Александр Дубинин
Брокер
Скачайте презентацию комплекса в 1 клик
book Скачать презентацию в PDF 5.11 MB, время скачивания 3 секунд
Похожие объекты
Квартира с 3 спальнями, 137 м2
ЖК «Садовые кварталы»
Фрунзенская
450 000 000 ₽
5 691 000 $
4 895 000 €
Квартира с 5-ю спальнями, 305 м2
ЖК «Садовые кварталы»
Фрунзенская
450 000 000 ₽
5 691 000 $
4 895 000 €
Квартира с 3-мя спальнями, 157 м2
449 960 000 ₽
5 691 000 $
4 894 000 €